Rico Bürkli Architektur
Bürobetrieb

Bürobetrieb
offene Stellen:
Praktikant/in 60-100 %
Bewerbungen bitte per Post an St. Johanns-Vorstadt 46
Erweiterung Schulanlage Bünda, Davos






Erweiterung Schulanlage Bünda, Davos
offener Wettbewerb, 2018
in Zusammenarbeit mit Studio O, Chur
Mitarbeit
Julia Staubach
Max Putzmann
Fadwa Louhichi
Assistenz für Entwurf, FHNW

Assistenz für Entwurf, FHNW
Assistent für Entwurf an der FHNW, 2016
Aufbaustudium 3. und 5. Semester
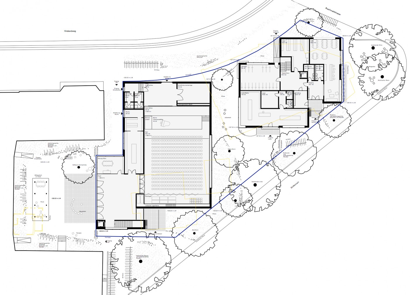
Neuer Gemeindesaal, Arlesheim






Neuer Gemeindesaal, Arlesheim
offener Wettbewerb, 2018
in Zusammenarbeit mit Studio O, Chur
Mitarbeit
Julia Staubach
Max Putzmann
Bilder: Tommaso Casalini